objektsanierung und aufstockung einer villa
redwitzstraße / münchen
 
bauherrprivat
architektenbarich + stoderl
wohnfläche266 m²
geschossfläche1004,8 m² (neuzugang 348,7 m²)
kubatur4093,5 m³
nettobaukosten966.000 €
genehmigungoktober 2001
bauzeitoktober 2001 - dezember 2002

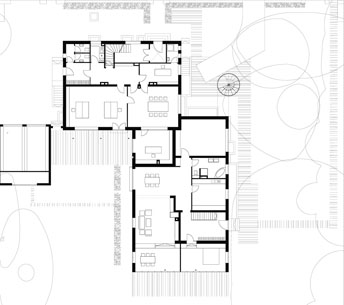
Die bestehende Villa aus den 50er Jahren wurde in ein Büro und drei Wohneinheiten umgebaut.
Der eingeschossige Anbau der alten Villa wurde auf drei Geschosse aufgestockt und nach Süden mit einem 2-stöckigen Anbau erweitert. So entstanden zwei weitere sehr großzügige Maisonettewohnungen.
Der Anbau ist nach Süden fast vollflächig verglast und schafft durch seine wintergartenähnlichen Räume, Terrassen und Dachterrassen eine Verbindung zum Garten.
Die Baukörper heben sich gestalterisch stark voneinander ab - Neubau und Altbau im Kontrast.
Bei dem Energiekonzept ist neben der passiven Solarenergienutzung das Blockheizkraftwerk zu nennen, das die Gebäude mit Strom und Wärme versorgt.

 

sanierung und aufstockung einer villa redwitzstraße / münchen
sanierung und aufstockung einer villa redwitzstraße / münchen
sanierung und aufstockung einer villa redwitzstraße / münchen
sanierung und aufstockung einer villa redwitzstraße / münchen
sanierung und aufstockung einer villa redwitzstraße / münchen
sanierung und aufstockung einer villa redwitzstraße / münchen
sanierung und aufstockung einer villa redwitzstraße / münchen
sanierung und aufstockung einer villa redwitzstraße / münchen
sanierung und aufstockung einer villa redwitzstraße / münchen sanierung und aufstockung einer villa redwitzstraße / münchen sanierung und aufstockung einer villa redwitzstraße / münchen sanierung und aufstockung einer villa redwitzstraße / münchen
sanierung und aufstockung einer villa redwitzstraße / münchen sanierung und aufstockung einer villa redwitzstraße / münchen sanierung und aufstockung einer villa redwitzstraße / münchen sanierung und aufstockung einer villa redwitzstraße / münchen