objektneubau eines ferienhauses
rosenhofweg / berchtesgaden
 
bauherrprivat
architektenbarich + stoderl, susanne rendel-großmann
wohnfläche296 m²
geschossfläche398 m²
kubatur2062 m³
genehmigungapril 2008
bauzeitseit august 2008

Für ein Ehepaar aus München wurde in Berchtesgaden ein Ferienhaus geplant.
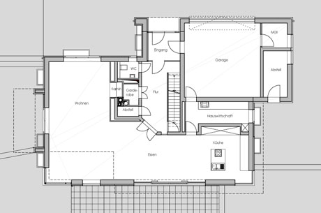
Der Grundriss wurde dabei nach den Wünschen der Bauherren im Erdgeschoss mit einem offenen Küchen-/ Wohn- und Essbereich sehr großzügig gestaltet.
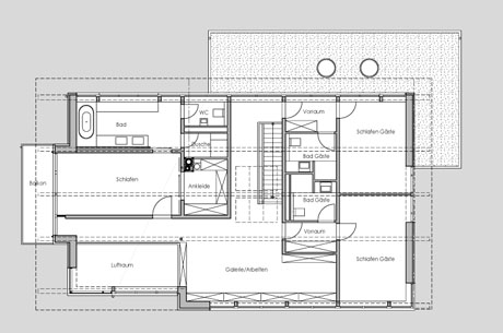
Im Obergeschoss befinden sich, neben Schlafraum und Bad, auch zwei Gästeschlafräume mit Bädern und eine Galerie, die sich zum Wohnraum öffnet.
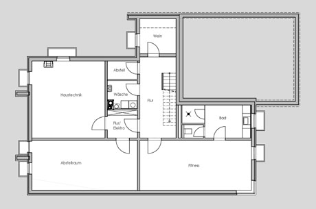
Im Keller wurden die notwendigen Technikräume untergebracht sowie ein Fitness- und Saunabereich.
Sowohl innen als auch außen wird das Haus mit sehr hochwertigen Materialien ausgestattet. Die Fassade wird in verschiedene Flächen unterteilt und erhält eine Vormauerung aus gebrochenem Naturstein und aus lasierter Eichenholzschalung.
Die gesamte Haustechnik wird zentral über ein Bus-System gesteuert.

 

neubau eines ferienhauses rosenhofweg / berchtesgaden
neubau eines ferienhauses rosenhofweg / berchtesgaden
neubau eines ferienhauses rosenhofweg / berchtesgaden
neubau eines ferienhauses rosenhofweg / berchtesgaden
neubau eines ferienhauses rosenhofweg / berchtesgaden
neubau eines ferienhauses rosenhofweg / berchtesgaden
neubau eines ferienhauses rosenhofweg / berchtesgaden
neubau eines ferienhauses rosenhofweg / berchtesgaden neubau eines ferienhauses rosenhofweg / berchtesgaden neubau eines ferienhauses rosenhofweg / berchtesgaden neubau eines ferienhauses rosenhofweg / berchtesgaden neubau eines ferienhauses rosenhofweg / berchtesgaden neubau eines ferienhauses rosenhofweg / berchtesgaden neubau eines ferienhauses rosenhofweg / berchtesgaden