objektneubau eines einfamilienhauses in der
düppelerstraße / johanneskirchen
 
bauherrprivat
architektenbarich + stoderl
wohnfläche220 m²
kubatur1.082 m³
nettobaukosten335.000 €
genehmigungnovemver 2000
bauzeitnovember 2000 - mai 2001

Das Baugrundstück mit vorhandenem Altbau befindet sich in einer 30er Jahre Siedlung in Johanneskirchen. Die bestehenden Doppelhaushälfte musste abgebaut werden.
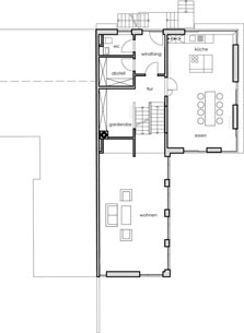
Nach Verhandlungen mit der Genehmigungsbehörde konnten wir, abweichend vom Bebauungsplan, einen L-förmigen Anbau realisieren.
Das Haus ist als Split-Level Typ ausgebildet. Der zentrale Wohnraum befindet sich auf Gartenniveau, der Koch- und Essbereich auf +1.50m über Gelände. Durch diese Maßnahme konnten trotz des hohen Grundwasserspiegels im Souterrain belichtete Räume realisiert werden.

 

neubau eines einfamilienhauses in der düppelerstraße / johanneskirchen
neubau eines einfamilienhauses in der düppelerstraße / johanneskirchen
neubau eines einfamilienhauses in der düppelerstraße / johanneskirchen
neubau eines einfamilienhauses in der düppelerstraße / johanneskirchen
neubau eines einfamilienhauses in der düppelerstraße / johanneskirchen
neubau eines einfamilienhauses in der düppelerstraße / johanneskirchen
neubau eines einfamilienhauses in der düppelerstraße / johanneskirchen neubau eines einfamilienhauses in der düppelerstraße / johanneskirchen neubau eines einfamilienhauses in der düppelerstraße / johanneskirchen neubau eines einfamilienhauses in der düppelerstraße / johanneskirchen neubau eines einfamilienhauses in der düppelerstraße / johanneskirchen neubau eines einfamilienhauses in der düppelerstraße / johanneskirchen