objektumbau eines 2-familienhauses
auf dem kyberg / oberhaching
 
bauherrprivat
architektenbarich + stoderl
wohnfläche199 m²
geschossfläche270 m²
kubatur1.070 m³
nettobaukosten145.000 €
genehmigungoktober 2007
bauzeitnovember 2007 - april 2008

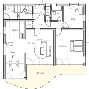
Die Bauherren erwarben ein 2-Familienhaus in typischer Bauweise der 60-er Jahre in Oberhaching. Das Grundstück ist geprägt durch die Lage auf dem Kyberg und die dadurch vorhandene schöne Aussicht nach Norden.
Im Erdgeschoss wird das Gebäude mit einem 1-geschossigen Baukörper erweitert, Loggia und Balkon werden verglast und dadurch zum Wohnraum erweitert. Nach Norden erhält das Gebäude neue Fensteröffnungen.

 

umbau eines 2-familienhauses auf dem kyberg / oberhaching
umbau eines 2-familienhauses auf dem kyberg / oberhaching
umbau eines 2-familienhauses auf dem kyberg / oberhaching
umbau eines 2-familienhauses auf dem kyberg / oberhaching
umbau eines 2-familienhauses auf dem kyberg / oberhaching
umbau eines 2-familienhauses auf dem kyberg / oberhaching
umbau eines 2-familienhauses auf dem kyberg / oberhaching umbau eines 2-familienhauses auf dem kyberg / oberhaching umbau eines 2-familienhauses auf dem kyberg / oberhaching umbau eines 2-familienhauses auf dem kyberg / oberhaching umbau eines 2-familienhauses auf dem kyberg / oberhaching umbau eines 2-familienhauses auf dem kyberg / oberhaching