objektneubau eines doppelhauses
hohenwaldstraße / oberhaching
 
bauherrprivat
architektenbarich + stoderl
wohnfläche360 m²
geschossfläche340 m²
kubatur1.800 m³
nettobaukosten530.000 €
genehmigungmai 2006
bauzeitmai 2006 - februar 2007

Das Grundstück am Oberhachinger Waldrand ist geprägt von freistehenden Ein- und Zweifamilienhäusern. Es entsteht ein Ensemble aus einem Einfamilienhaus und einem Doppelhaus.
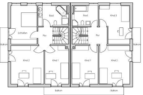
Das Doppelhaus ist durch die schöne Südausrichtung und die großen Verglasungen gekennzeichnet, das OG erhält Balkone nach Osten, Süden und Westen.
Das Gebäude wird einer Grundwasserwärmepumpe beheizt, die Wärme wird über eine Fußbodenheizung verteilt.

 

neubau eines doppelhauses hohenwaldstraße / oberhaching
neubau eines doppelhauses hohenwaldstraße / oberhaching
neubau eines doppelhauses hohenwaldstraße / oberhaching
neubau eines doppelhauses hohenwaldstraße / oberhaching
neubau eines doppelhauses hohenwaldstraße / oberhaching
neubau eines doppelhauses hohenwaldstraße / oberhaching
neubau eines doppelhauses hohenwaldstraße / oberhaching neubau eines doppelhauses hohenwaldstraße / oberhaching neubau eines doppelhauses hohenwaldstraße / oberhaching neubau eines doppelhauses hohenwaldstraße / oberhaching neubau eines doppelhauses hohenwaldstraße / oberhaching neubau eines doppelhauses hohenwaldstraße / oberhaching