objektsanierung und erweiterung eines gebäudes
aus verschiedenen bauzeiten
josef-beiser-straße / münchen
 
bauherrprivat
architektenbarich + stoderl
wohnfläche397 m²
kubatur1550 m³
nettobaukosten480.000 €
genehmigungmärz 2005
bauzeitmärz 05 - september 05

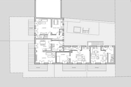
Das bestehende Gebäude in Altperlach wurde komplett saniert und um einen Turm und die Aufstockung des eingeschossigen Anbaus erweitert. Es sind vier unterschiedlich große Wohnungen entstanden, die alle einen eigenen Eingang besitzen, so dass ein "Hauscharakter" für jede Wohneinheit entstanden ist. Jede Wohnung hat auf der Rückseite eine kleinen Garten mit Terrasse.
Das gesamte Gebäude wurde wärmegedämmt und mit moderner Heiztechnik sowie Solarkollektoren und dachintegrierter Photovoltaikanlage ausgestattet.

 

sanierung und erweiterung eines gebäudes aus verschiedenen bauzeiten josef-beiser-straße / münchen
sanierung und erweiterung eines gebäudes aus verschiedenen bauzeiten josef-beiser-straße / münchen
sanierung und erweiterung eines gebäudes aus verschiedenen bauzeiten josef-beiser-straße / münchen
sanierung und erweiterung eines gebäudes aus verschiedenen bauzeiten josef-beiser-straße / münchen
sanierung und erweiterung eines gebäudes aus verschiedenen bauzeiten josef-beiser-straße / münchen
sanierung und erweiterung eines gebäudes aus verschiedenen bauzeiten josef-beiser-straße / münchen
sanierung und erweiterung eines gebäudes aus verschiedenen bauzeiten josef-beiser-straße / münchen
sanierung und erweiterung eines gebäudes aus verschiedenen bauzeiten josef-beiser-straße / münchen sanierung und erweiterung eines gebäudes aus verschiedenen bauzeiten josef-beiser-straße / münchen sanierung und erweiterung eines gebäudes aus verschiedenen bauzeiten josef-beiser-straße / münchen sanierung und erweiterung eines gebäudes aus verschiedenen bauzeiten josef-beiser-straße / münchen sanierung und erweiterung eines gebäudes aus verschiedenen bauzeiten josef-beiser-straße / münchen sanierung und erweiterung eines gebäudes aus verschiedenen bauzeiten josef-beiser-straße / münchen sanierung und erweiterung eines gebäudes aus verschiedenen bauzeiten josef-beiser-straße / münchen